5 locali in vendita

Roma, Via Della Pineta Sacchetti - Montemario Gemelli
€ 590.000
Prezzo aggiornato
5 locali 5 locali
162 Mq 162 Mq
2 bagni 2 bagni

5 locali in vendita

Roma, Via Della Pineta Sacchetti - Montemario Gemelli

Descrizione annuncio

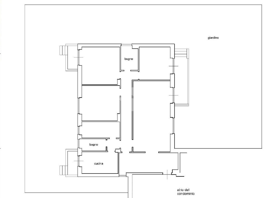
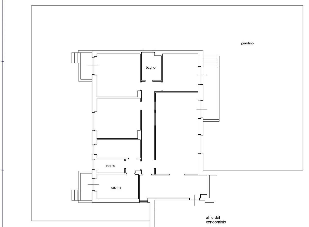
Ampia metratura, giardino perimetrale e triplice esposizione – una casa da vivere e valorizzare

Di fronte al Policlinico Universitario Agostino Gemelli, in Via della Pineta Sacchetti, proponiamo in vendita un appartamento di ampia metratura con giardino perimetrale esclusivo di circa 200 mq, completamente interno e riservato, accessibile da più punti dell’abitazione.

L’immobile è situato al piano terra rialzato di uno stabile signorile recentemente ristrutturato esternamente e dotato di ascensore. Gli infissi sono in alluminio con doppio vetro, a garanzia di un buon isolamento e comfort abitativo.

Gli spazi interni sono generosi e ben distribuiti. L’ingresso introduce a una zona giorno ampia e luminosa, con soggiorno doppio che gode di un affaccio diretto sull’esterno. La cucina è abitabile e separata, mentre la zona notte è composta da tre camere matrimoniali, una camera di servizio e due bagni. La triplice esposizione, unita alla metratura importante, offre la possibilità di ottimizzare la distribuzione degli ambienti e valorizzare ulteriormente gli spazi, adattandoli alle esigenze di una famiglia moderna o a soluzioni abitative evolute.

La presenza di tre balconi rende la casa particolarmente ariosa e luminosa: uno è accessibile sia dal soggiorno sia da una camera, un secondo serve un’altra camera sul lato opposto, mentre il terzo è collegato alla cucina. Tutti i balconi sono dotati di gradini che conducono direttamente al giardino, creando una continuità naturale tra interno ed esterno e permettendo di vivere il verde da ogni lato della casa.

Completano la proprietà una cantina di circa 10 mq e un box auto di circa 15 mq, elemento di assoluto valore in una zona così richiesta.

La posizione è strategica e ottimamente servita, a pochi passi da università, ospedali (Gemelli, Cristo Re), mezzi pubblici e tutti i principali servizi.

Una soluzione rara per chi cerca grandi spazi, riservatezza e un giardino vivibile, con il vantaggio di poter valorizzare al massimo ogni ambiente grazie alla metratura e alla triplice esposizione, restando nel cuore della città.

Contattateci per maggiori informazioni e per fissare una visita.

Tel. 06.3070523 – Mobile 393.8404087

Puoi richiedere anche una Valutazione Gratuita e senza impegno del tuo immobile ai nostri recapiti

Mostra tutto

Nelle vicinanze

Trasporto pubblico Trasporto pubblico
Gemelli
Gemelli
600 m
stazione di Roma Monte Mario
stazione di Roma Monte Mario
760 m
Pineta Sacchetti/Acqua Paola
Pineta Sacchetti/Acqua Paola
20 m
Pineta Sacchetti/Villa Maggiorani
Pineta Sacchetti/Villa Maggiorani
130 m
Ricariche auto elettriche Ricariche auto elettriche
Axpo - Stazio
1,9 Km
Rome Cavalieri, A Waldorf Astoria Resort
2,3 Km
Roma Clodio | EnelX
3,0 Km
Scuole Scuole
Scuola Media Statale Paolo Stefanelli - sede centrale
170 m
Università Cattolica del Sacro Cuore
190 m
Taggia
520 m
Scuola Sacro Cuore
530 m
Istituto Piccole Ancelle del sacro cuore
550 m
Farmacia Farmacia
Parafarmacia
460 m
Farmacia
480 m
Farmacia Gemelli
480 m
Farmacia Pineta Sacchetti
850 m
Farmacia Padre Pio
860 m
Ospedali Ospedali
Hospice Villa Speranza
210 m
Policlinico Universitario Agostino Gemelli
310 m
Complesso Integrato Columbus
770 m
Ospedali
980 m
Ospedale Cristo Re
1,7 Km
Supermercati Supermercati
Tuodì
410 m
IN's
440 m
Todis
460 m
PIM
630 m
Agorà Supermercati
630 m
Negozi Negozi
Negozi
460 m
Mini Market
460 m
RG
460 m
Mino jeans
480 m
Oviesse
520 m
Bar Bar
Bar
390 m
Truzzi
470 m
Lory
470 m
Giglio
510 m
dello Studente
630 m
Ristoranti Ristoranti
Ristoranti
500 m
cinapoli
500 m
Lo Scalino
540 m
L'Archetto
540 m
La Molisanella
600 m
Mostra tutto

Caratteristiche

Rif.:
61172922
Piano:
Terra di 4 con ascensore
Totale piani:
4
Box:
1
Balconi:
3
Camere da letto:
3
Mostra tutto
Prezzo Prezzo
€ 590.000
Rata mutuo Rata mutuo
€ 2.789 / mese
Spese annue Spese annue
€ 2.400
Proponi il tuo prezzoProponi il tuo prezzo

Classe Energetica

G
G
G
G
G
G
G
G
G
EP globale non rinnovabile:
175.00 kW h/m² anno
EP globale rinnovabile:
1.00 kW h/m² anno
EP invernale del fabbricato:
EP estiva del fabbricato:
Anno di costruzione:
1960
Riscaldamento:
Autonomo
Tipo impianto:
A radiatori
Tipo alimentazione:
Metano

Prezzo ridotto di €1 (5%%)

Ti interessa visionare l'immobile?

Fissa un appuntamento  Fissa un appuntamento

Richiedi informazioni

Clicca su Leggi per aprire l'informativa
* Questi campi sono obbligatori

Calcola il tuo mutuo

Semplice e senza impegno
Anticipo

( % )
Mutuo

( % )

pochi semplici passi

inserisci i tuoi dati
Questionario completato
Grazie per aver richiesto un appuntamento senza impegno con un nostro Consulente del Credito e Assicurativo.

Hai inserito correttamente tutti i dati necessari e a breve riceverai una e-mail con un link da convalidare per inviare i tuoi dati.
Affiliato
Studio Monte Mario Gemelli Srl
Via Trionfale, 8310 00135 Roma (RM)

Il nostro staff


  • Manuela Pellegrini
    Coordinatrice

  • Andrea De Petris
    Affiliato
Via Trionfale, 8310 00135 Roma (RM)
Zona: Monte Mario Gemelli - Pineta Sacchetti
Mostra su mappa
Orari: dal lunedì al venerdì 09.00-13.00 / 15.00-19.30. Sabato 09.00-13.00.
Affiliato
Studio Monte Mario Gemelli Srl
Via Trionfale, 8310 00135 Roma (RM)

2026 Tecnocasa Franchising S.p.A. - P. IVA 08365160152 - Via Monte Bianco 60/A 20089 Rozzano (MI). Ogni agenzia ha un proprio titolare ed è autonoma. Privacy policy | Policy utilizzo | Cookie policy